收藏本站
我的资料
   
查看手机网站
 

漳州市区南昌路2019P12地块将建7栋高层及1所幼儿园

 二维码
发表时间:2020-12-04 11:08来源:漳州楼市情报

【编者注:为了向网友提供更多更丰富的资讯,本网将转载、转发部分回顾性资讯,相关资讯的发布时间、所述事件时间,请网友留意。注:本文发布于2020年1月。




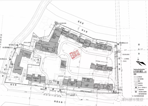
2020年1月13日,漳州市自然资源局发布《漳州2019P12地块建设工程设计方案总平面图批前公示(漳自然资审〔2020〕4号)》,据该公示显示,该项目总建筑面积超过10万㎡,总计容建筑面积约7.8万㎡,为围合式小区,将建7栋高层住宅,住宅户数540套,其中,1#、5#、6#、7#、8#楼18层、2#、3#楼26+1层,同时配套建设1个规模9个班的幼儿园。

据了解,漳州2019P12地块于2019年11月5日为建发以楼面价约8500元/㎡摘得,溢价率约25%。住宅最高限价20000元/㎡。



建发南昌路地块即漳州2019P12地块主要技术经济指标如下:

实际用地面积:29908.46㎡
总建筑面积:100342.90㎡
总计容建筑面积:77760.99㎡
住宅面积:68848.77㎡
总户数(住宅类):540套
90-150㎡户数:536套
>150㎡户数:4套
机动车位:686个(地上69个,底下617个)
幼儿园(9个班):3149.12㎡(位于9#楼)

漳州2019P12地块建设工程设计方案总平面图(批前公示)如下:




来源:漳州楼市情报综合漳州市自然资源局


免责声明:凡注明“来源:漳州楼市网”或“漳州楼市情报”的所有文字图片视频等资料,版权均归漳州楼市网/漳州楼市情报所有,转载请注明出处;文章内容仅供参考,不构成投资建议,也不代表漳州楼市网/漳州楼市情报赞同其观点。文中所涉面积如无特别说明,均为建筑面积。文章如有涉及侵权的内容、图片以及其它问题的,请联系本站删除,联系电话:0596-2182801。

漳州楼市网小程序 漳州楼市情报公众号
微信小程序
微信小程序
百度小程序
百度小程序
公众号
公众号
帮您找房

帮您找房

副标题

意向区域
意向楼盘
意向面积
意向户型
意向价格
具体需求
联系人
*
联系电话
*
提交
楼市问答
最新资讯

最新资讯

副标题

楼市报告

楼市报告

副标题

楼市动态

楼市动态

副标题

楼市政策

楼市政策

副标题

土拍征迁

土拍征迁

副标题

房贷公积金

房贷公积金

副标题

学区教育

学区教育

副标题

居住配套

居住配套

副标题

保障性住房

保障性住房

副标题

地产招聘

地产招聘

副标题

房产百科
买房准备
看房选房
认购合同
贷款办理
收房验房
缴税过户
产权办理
政策法规
买房工具
买房准备-买房知识

买房准备-买房知识

副标题

看房选房-买房知识

看房选房-买房知识

副标题

认购合同-买房知识

认购合同-买房知识

副标题

贷款办理-买房知识

贷款办理-买房知识

副标题

收房验房-买房知识

收房验房-买房知识

副标题

缴税过户-买房知识

缴税过户-买房知识

副标题

产权办理-买房知识

产权办理-买房知识

副标题

政策法规-买房知识

政策法规-买房知识

副标题

   •   买房能力评估

   •   商业贷款计算器

   •   公积金贷款计算器

   •   组合贷款计算器

   •   提前还款计算器

   •   税费计算器

新房楼盘大全

龙湖双珑原著 西湖正荣府 万科城玖龙台 禹洲雍江府 恒大帝景 特房锦绣碧湖 大唐锦绣世家 联发君领壹号 九龙兴城

扫一扫
扫一扫漳州楼市网手机版
扫一扫漳州楼市网手机版
扫一扫漳州楼市网微信小程序
扫一扫漳州楼市网微信小程序
扫一扫漳州楼市网百度小程序
扫一扫漳州楼市网百度小程序
扫扫漳州楼市情报公众号
扫扫漳州楼市情报公众号
登录
获取验证码
登录
登录
我的资料
留言
回到顶部