收藏本站
我的资料
   
查看手机网站
 

最新!漳州市区西湖片区、益民片区2幅商服地块挂牌有变……

 二维码
发表时间:2023-04-04 00:45网址:https://www.0596loushi.com/

漳州楼市近期头条

头条1市区策划省级城市片区综合开发建设样板

头条2从千年的帝师府邸到如今的南湖壹号…

头条32023年将开建景山公园、西湖溪流公园



漳州市自然资源局国有建设用地使用权挂牌出让补充公告
(漳自然资补告字[2023]2号)

我局于2023年2月17日发布《漳州市自然资源局国有建设用地使用权出让挂牌公告》(漳自然资告字[2023]2号),挂牌出让两宗国有建设用地使用权(地块编号为2023G01、2023G02),原公告挂牌结束时间为2023年3月23日16时00分。因网上交易系统服务器升级,交易冻结,现将两宗地挂牌结束时间顺延至2023年3月27日16时00分。原公告其他内容不变。


特此公告。


漳州市自然资源局
2023年3月15日

来源:漳州市自然资源局

相关资讯:2023年漳州市区首场土拍顺利落幕!
4幅宅地均低价成交!拿地房企均为国企……

附:2023年漳州市区首次商服地块网上挂牌详情

漳州历来就有“亲商、为商、扶商”的良好社会氛围,漳州市行政服务中心是全国先进集体和服务业标准化试点单位。漳州是福布斯发布最具商业价值中国百佳城市、中国发展水平和综合实力百强城市、全国构建开放型经济新体制综合试点试验城市和中国跨境电商综试区,拥有2个国家级开发区、1个国家级高新区、1个国家级台商投资区和8个省级开发区,已成为潜力大、前景好的投资热土、创业宝地,蕴含着无限商机。2023年岁末年初,居民消费需求旺盛,一段时间来,漳州开展系列特色促消费活动,推动全市消费信心强起来、气氛热起来、市场火起来。


漳州中心城区土地稀缺,仅占3%,人口集中度18.7%,其中75%以上的户籍人口集中在芗城区,人口聚集度高,本次挂牌的两宗商服地块正落于此。

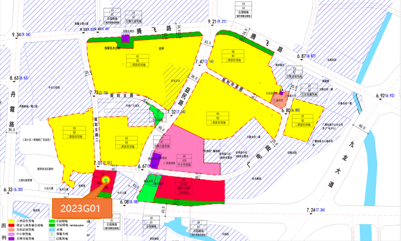
益民片区2023G01地块


2023G01地块位于益民路以西、胜利东路以北,所属益民片区,性质为商业与商务混合用地,用地面积约8.68亩,计容建筑面积20257万平方米,起拍价5850万,采用挂牌方式出让。


(落位图)

地理区位方面,益民片区位于漳州芗城区和龙文区两大经济区域的交汇地带,周边目前缺乏高端商务办公业态,2023G01地块作为片区该功能的空白补充,未来将成为片区重要的形象展示区,促进商务办公升级。


交通通达方面,片区位于城市东西走向与南北走向两条交通干道的重要交通节点,凭借九龙大道、胜利东路、腾飞路以及迎宾大道,益民片区和女排娘家基地、人民广场板块连成一片,与万达广场商圈连成一线,为2023G01地块商业、商务发展提供更多的可能。


商圈氛围方面,周边商圈环伺,大型商圈有漳州印象汇、天虹商场两大繁华商圈以及还在建的大体量商业体新城吾悦广场;传统街区以阳光雅苑底商为基础,向西延伸,串联新增商业中心、牛庄、文化休闲走廊。


同时2023G01地块作为漳州老城区最核心区域为数不多的库存宝地,土地资源稀缺,人口密度高,投资潜力大。


西湖生态园片区2023G02地块


2023G02地块位于瑞京路以西、西湖东畔,性质为商业用地,用地面积约6.31亩,计容建筑面积2100㎡,起拍价1700万,采用挂牌方式出让。


(落位图)

地理区位方面,2023G02地块占据西湖头排景观,作为西湖生态园片区商业功能的“填白”完善,占据环湖第一经济圈黄金地段,未来具备打造差异化商业先天优势。


商圈氛围方面,西湖毗邻老城区,坐享老城区的商业配套,不仅如此,西湖板块1km范围内涵盖三宝广场、万科里、红星美凯龙等大型商场,片区内的商业配套吸附大量人气和财富,为将为2023G02地块及西湖未来商业发展提供持续强劲动力。


人口流量方面,西湖生态园区内包含渡头在内的六个安居房总建筑面积约140万平方米, 覆盖4700户居民。同时片区内高楼林立,如龙湖双珑原著、正荣府、万科玖龙台、建发西湖观澜、联发君樾西湖、励欧玖颂西湖等,未来随着片区内规划逐步兑现,高消费居住人口将大幅提升。同时,西湖生态园作为市区重金打造生态公园之一,居民、游客出行热情高,未来将引领生态流量变现之路。


来源:漳州市自然资源局

推荐阅读

市区策划“省级城市片区综合开发建设样板”
从千年的帝师府邸到如今的南湖壹号…
2023年将开建景山公园、西湖溪流公园…
重磅!漳州三中龙文校区10月将封顶
小阳春还在路上,西湖这楼盘率先火了
新地标!漳州市区八闽不夜城总平曝光
最新!2023年漳州市区首场土拍顺利落幕
升级为市长挂帅的“全市战略”!2023年…
龙文区将高标准推进“五大片区”组团开发
漳州市区房价2周上涨!刚需仍是主力
漳州市区楼市筑底结束!小阳春要来了…
旭辉进军漳州市区!项目5月可达预售
重磅!3月1日起漳州房贷加入降息大军
- End -

公众号推送规则改变,不愿意错过精彩内容,三步走设为“星标”!点击上方蓝字『漳州楼市情报』-点击右上角『...』-点选『设为星标』。还可点『在看』或者『点赞』互动。点击文末“阅读原文”,进入“漳州楼市网www.0596loushi.com、m.0596loushi.com”可阅读更多内容。



责编:漳州楼市情报/漳州楼市网www.0596loushi.com整合编辑

免责声明:图文版权归属原作者,文章内容及图片如涉及作品内容、版权和其它问题,请在30日内与本公众号联系,我们将在第一时间删除内容。文章只提供参考并不构成任何投资及应用建议。

楼盘宣传信息有效期:截止发布之日起7天内(面积为建筑面积)

猛戳,提醒更多人“在看

免责声明:凡注明“来源:漳州楼市网”或“漳州楼市情报”的所有文字图片视频等资料,版权均归漳州楼市网/漳州楼市情报所有,转载请注明出处;文章内容仅供参考,不构成投资建议,也不代表漳州楼市网/漳州楼市情报赞同其观点。文中所涉面积如无特别说明,均为建筑面积。文章如有涉及侵权的内容、图片以及其它问题的,请联系本站删除,联系电话:0596-2182801。

漳州楼市网小程序 漳州楼市情报公众号
微信小程序
微信小程序
百度小程序
百度小程序
公众号
公众号
帮您找房

帮您找房

副标题

意向区域
意向楼盘
意向面积
意向户型
意向价格
具体需求
联系人
*
联系电话
*
提交
楼市问答
最新资讯

最新资讯

副标题

楼市报告

楼市报告

副标题

楼市动态

楼市动态

副标题

楼市政策

楼市政策

副标题

土拍征迁

土拍征迁

副标题

房贷公积金

房贷公积金

副标题

学区教育

学区教育

副标题

居住配套

居住配套

副标题

保障性住房

保障性住房

副标题

地产招聘

地产招聘

副标题

房产百科
买房准备
看房选房
认购合同
贷款办理
收房验房
缴税过户
产权办理
政策法规
买房工具
买房准备-买房知识

买房准备-买房知识

副标题

看房选房-买房知识

看房选房-买房知识

副标题

认购合同-买房知识

认购合同-买房知识

副标题

贷款办理-买房知识

贷款办理-买房知识

副标题

收房验房-买房知识

收房验房-买房知识

副标题

缴税过户-买房知识

缴税过户-买房知识

副标题

产权办理-买房知识

产权办理-买房知识

副标题

政策法规-买房知识

政策法规-买房知识

副标题

   •   买房能力评估

   •   商业贷款计算器

   •   公积金贷款计算器

   •   组合贷款计算器

   •   提前还款计算器

   •   税费计算器

新房楼盘大全

龙湖双珑原著 西湖正荣府 万科城玖龙台 禹洲雍江府 恒大帝景 特房锦绣碧湖 大唐锦绣世家 联发君领壹号 九龙兴城

扫一扫
扫一扫漳州楼市网手机版
扫一扫漳州楼市网手机版
扫一扫漳州楼市网微信小程序
扫一扫漳州楼市网微信小程序
扫一扫漳州楼市网百度小程序
扫一扫漳州楼市网百度小程序
扫扫漳州楼市情报公众号
扫扫漳州楼市情报公众号
登录
获取验证码
登录
登录
我的资料
留言
回到顶部